Продаётся дом 96 м2 на участке 6 сот. в 80 км от МКАД по Ленинградому шоссе в посёлке «Атеевка-парк»
| Номер объявления: | 28 Обновлено: 02.02.2015 в 12:38 |
| Цена: | 2 270 000 руб. |
| Характеристики объекта | |
| Направление: | Ленинградское шоссе |
| Удалённость от МКАД: | 80 км смотреть на карте |
| Готовность: | Идёт строительство |
| Количество надземных этажей: | 2 |
| Площадь объекта: | 96 м2 |
| Площадь участка: | 6 сот. |
| Категория земель: | С/х под дачное строительство |
| Рынок: | Первичный |
| Гараж: | нет |
| Электричество: | есть |
| Водопровод: | есть |
| Газ: | нет |
| Центральная канализация: | нет |
| Отопление: | нет |
| КПП с охраной: | есть |
| Проводной телефон: | нет |
| Проводной интернет: | нет |
| Лес в окрестностях: | есть |
| Водоём в окрестностях: | нет |
| Отделка под ключ: | нет |
| Подряд: | нет |
| Контактные данные | |
Дом в коттеджном поселке «Атеевка Парк»
Дом по проекту № 3.
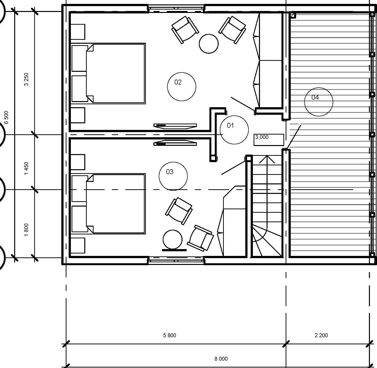
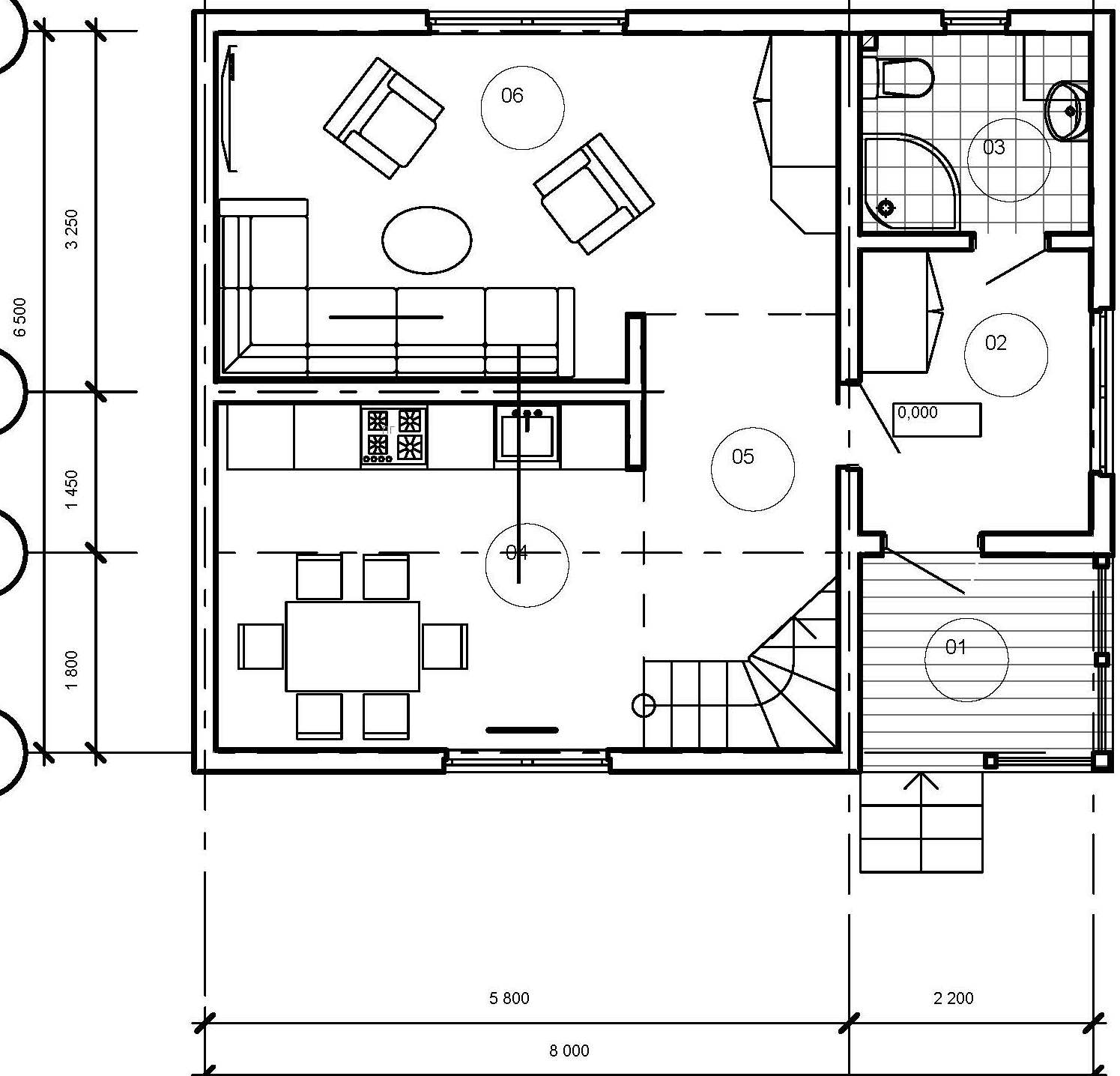
Одноэтажный жилой дом с мансардным этажом. Большая кухня отдельно от гостиной. Удобная прихожая, огромные спальни. Общая площадь 96 кв.м. Площади 1 этажа: Крыльцо 4.44 кв.м. Прихожая 5.29 кв.м. с/у 3.74 кв.м. Кухня 11.94 кв.м. Холл 6.87 кв.м. Гостиная 16.36 кв.м. В гостиной вы найдете большое панорамное окно с прекрасным видом на Ваш участок. Площади 2 этажа: Холл 1.93 кв.м. Спальня 16.59 кв.м. Спальня 14.2 кв.м. Балкон 14.67 кв.м. Итого жилая площадь: 47.15 кв.м.
Фундамент: 0,7х0,25 (мелкозаглубленная армированная фундаментная лента, единая под домом и верандой с подсыпкой песка на геотекстиль под ленту).
Каркас дома: доска естественной влажности 150х50, перегородки несущие из доски естественной влажности 150х50, обвязка первого этажа из доски естественной влажности 150х50, балки перекрытий первого и второго этажа - из доски естественной влажности 200х50, несущая внутренняя обшивка плитами OSB3 9 мм.
Кровля: металлочерепица с полимерным покрытием Grand line, утепление 150 мм. минеральной ватой Paroc.
Утепление внешних стен – 150 мм. Paroc с использованием паро и гидроизоляции.
Отделка: наружные стены – сайдинг Doke по деревянной обрешетке 30х50 мм., внутренняя отделка всех помещений – евровагонка, потолок–евровагонка, полы первого и второго этажа дома- фанера 21 мм., пол веранды и крылец – доска пола сосна.
Окна: двухкамерный пластиковый стеклопакет Rehau Blitz , москитные сетки на откидных окнах. Металлическая входная дверь.
Цена 2270000 руб.
Участок 6 соток.
Срок постройки около 2 мес.