Продаётся дом 113 м2 на участке 6 сот. в 80 км от МКАД по Ленинградому шоссе
| Номер объявления: | 30 Обновлено: 05.04.2020 в 11:54 |
| Цена: | 2 700 000 руб. |
| Характеристики объекта | |
| Направление: | Ленинградское шоссе |
| Удалённость от МКАД: | 80 км смотреть на карте |
| Готовность: | Идёт строительство |
| Количество надземных этажей: | 2 |
| Площадь объекта: | 113 м2 |
| Площадь участка: | 6 сот. |
| Категория земель: | С/х под дачное строительство |
| Рынок: | Первичный |
| Гараж: | нет |
| Электричество: | есть |
| Водопровод: | есть |
| Газ: | нет |
| Центральная канализация: | нет |
| Отопление: | нет |
| КПП с охраной: | нет |
| Проводной телефон: | нет |
| Проводной интернет: | нет |
| Лес в окрестностях: | есть |
| Водоём в окрестностях: | нет |
| Отделка под ключ: | нет |
| Подряд: | нет |
| Контактные данные | |
Дом в коттеджном поселке «Атеевка Парк»
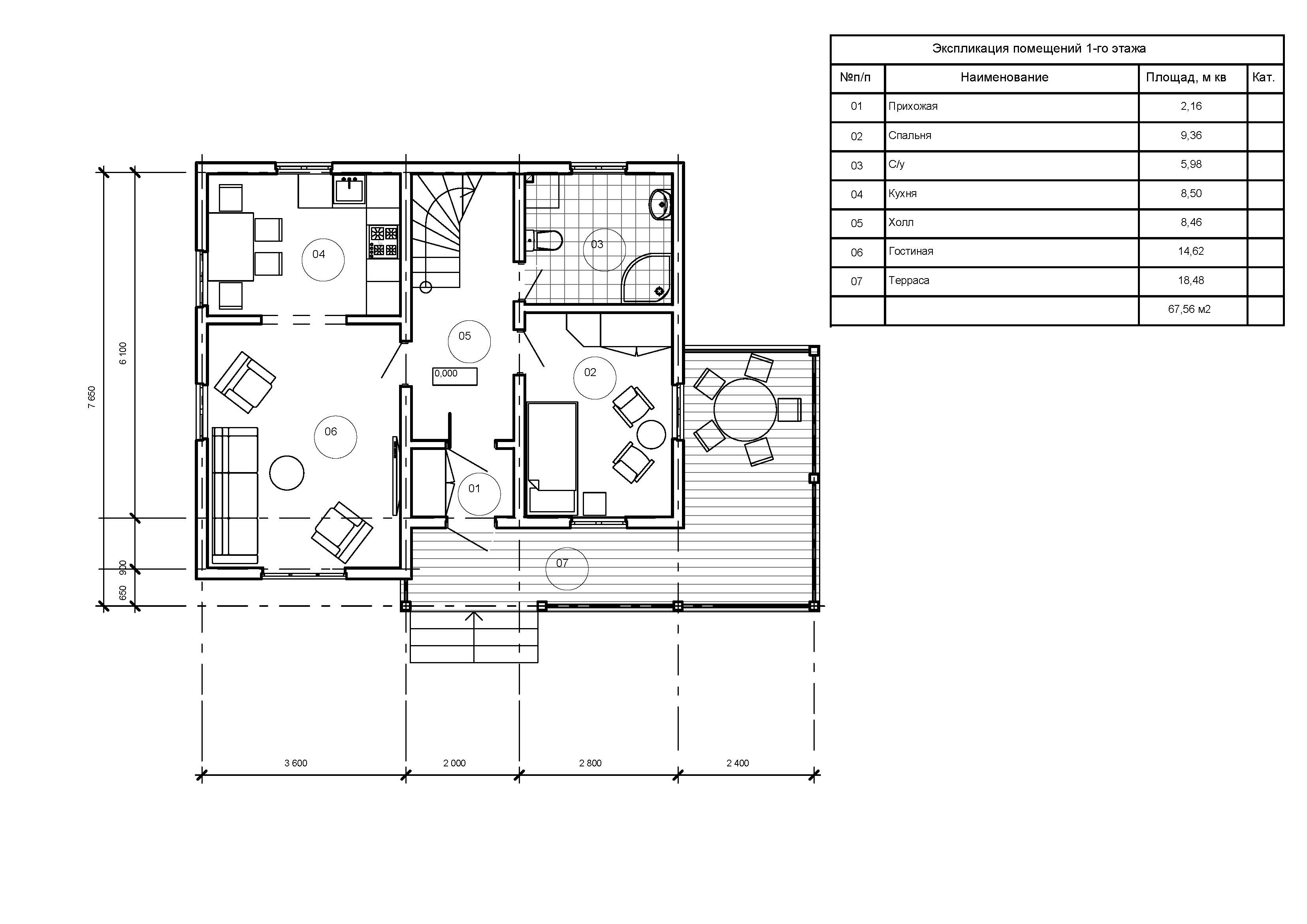
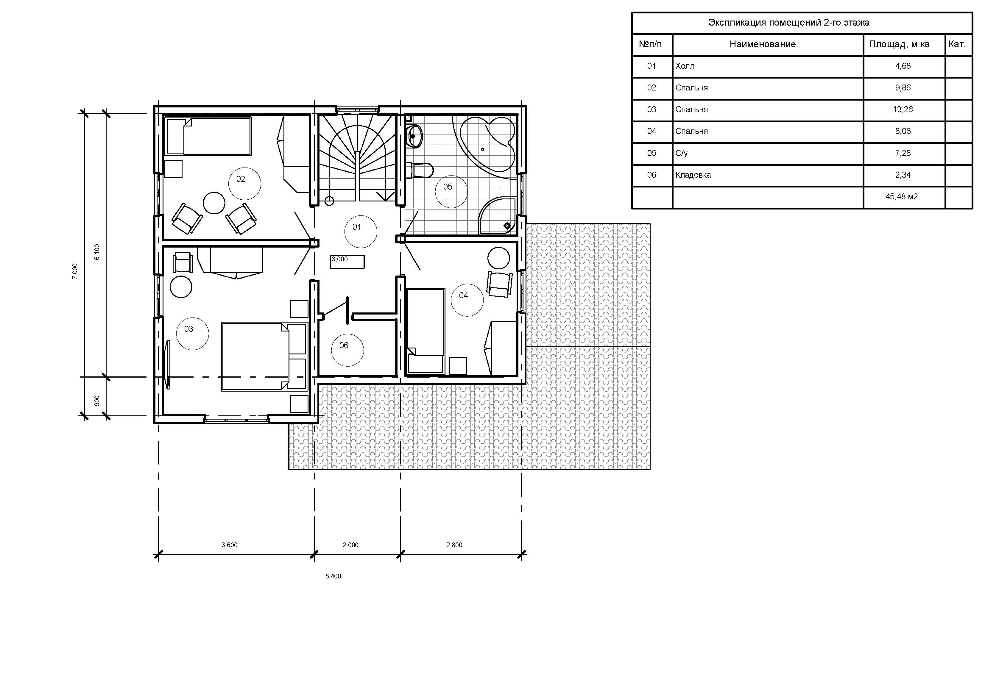
Одноэтажный жилой дом с мансардным этажом. Этот дом немного уступает «Проект 4» в размерах, но нисколько не уступает по функциональности. В его активе высокие потолки второго этажа, правильные формы, просторная терраса.
Общая площадь 113 кв.м. Площади 1 этажа: Прихожая 2.16 кв.м. Спальня 9.36 кв.м. с/у 5.98 кв.м. Кухня 8.50 кв.м. Гостиная 14.62 кв.м. По желанию кухонную и гостиные зоны можно разделить дверями. Холл 8.46 кв.м. Терраса 18.48 кв.м. Площади 2 этажа: Холл 4.68 кв.м. Спальня 9.86 кв.м. Спальня 13.26 кв.м. Спальня 8.06 кв.м. с/у 7.28 кв.м. Кладовка 2.34 кв.м. Итого жилая площадь: 55.16 кв.м.
Фундамент: 0,7х0,25 (мелкозаглубленная армированная фундаментная лента, единая под домом и верандой с подсыпкой песка на геотекстиль под ленту).
Каркас дома: доска естественной влажности 150х50, перегородки несущие из доски естественной влажности 150х50, обвязка первого этажа из доски естественной влажности 150х50, балки перекрытий первого и второго этажа - из доски естественной влажности 200х50, несущая внутренняя обшивка плитами OSB3 9 мм.
Кровля: металлочерепица с полимерным покрытием Grand line, утепление 150 мм. минеральной ватой Paroc.
Утепление внешних стен – 150 мм. Paroc с использованием паро и гидроизоляции.
Отделка: наружные стены – сайдинг Doke по деревянной обрешетке 30х50 мм., внутренняя отделка всех помещений – евровагонка, потолок–евровагонка, полы первого и второго этажа дома- фанера 21 мм., пол веранды и крылец – доска пола сосна.
Окна: двухкамерный пластиковый стеклопакет Rehau Blitz , москитные сетки на откидных окнах. Металлическая входная дверь.
Цена 2700000 руб.
Участок 6 соток.
Срок постройки около 2 мес.